Как правильно подключить вытяжку

Вытяжка для современной хозяйки – незаменимое оборудование, способствующее удалению нежелательных ароматов, продуктов сгорания, дыма и испарений. Большое разнообразие модельного ряда вытяжек позволяет подобрать технику, подходящую по всем возможным параметрам: наличие воздуховода, размеры, мощность, дизайн. После того, как выбор сделан, нужно позаботиться о том, как закрепить вытяжку на кухне. Это не сложно, но от мастера потребуется внимание к деталям и ответственный подход к выбору комплектующих. В данной статье вы найдете ответ на вопрос о том, как провести вытяжку, и узнаете об основных этапах монтажа.

Виды вытяжек по способам установки

Чтобы подключение вытяжки на кухне прошло максимально эффективно, нужно понимать различия в установке разных типов устройств. На сегодняшний день по рабочим характеристикам, функционалу и способам монтирования различают следующие разновидности кухонных вытяжек:

  • плоская (подвесная) – устанавливается под шкаф или на потолок над плитой, занимает мало места и легко поддается самостоятельному монтажу;
  • настенная – устанавливается над плитой, фиксируется на стене;
  • встраиваемая – монтируется внутри навесного шкафа, отлично гармонирует с любым стилем оформления;
  • островная – крепится к потолку в том месте, где расположена варочная поверхность (как правило, это середина помещения, так называемый «островок»);
  • угловая – располагается в углу кухни, занимает минимум места.

Схема подключения вытяжки зависит также от режима вентиляции:

  1. Проточный – грязный воздух попадает в вентиляционную шахту с помощью вытяжного механизма.
  2. Циркуляционный – выход в вентиляцию отсутствует, воздух очищается посредством фильтров, расположенных в корпусе вытяжки.

Необходимые инструменты для установки вытяжки

Подключение вытяжек на кухне сопряжено с необходимостью предварительной подготовки, закупки инструментов и материалов. Некоторые комплектующие предоставляются в комплекте с оборудованием, другие придется купить самостоятельно. Для установки потребуется:

  • Гибкая гофра или пластиковый короб, которые предназначены для отвода грязного воздуха непосредственно в воздуховодный канал, необходимы на этапе, когда производится подключение кухонной вытяжки к вентиляции.
  • Решетка, устанавливаемая на вентиляционную шахту.
  • Хомуты для фиксирования гофры.

Монтаж и подключение вытяжки к вентиляционной шахте проводится с помощью инструментов:

  1. набор отверток разных размеров;
  2. перфоратор, дрель или шуруповерт;
  3. обычный или канцелярский нож;
  4. уровень для ровной установки оборудования;
  5. рулетка и простой карандаш для отметок;
  6. ножовка по металлу (в случае, когда подключение вытяжки к вентиляции проводится с помощью металлической гофры).

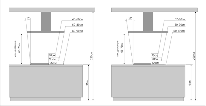
Как определить высоту установки вытяжки

Результат работы вытяжной техники напрямую зависит от расстояния, на котором она находится от варочной поверхности:

  • если подключить вытяжку довольно высоко, то она не будет выполнять свою основную функцию, дым и запахи без препятствий распространятся по кухне;
  • если оборудование будет находиться слишком низко, то оно создаст помехи при работе, кроме того повысится опасность возгорания накопившегося на поверхности жира.

Наиболее усредненная величина расположения оборудования над плитой – это 75 сантиметров от газовой варочной поверхности и 65 сантиметров от электрической.

Какая оптимальная высота вытяжки?

Когда опытных мастеров спрашивают, как правильно провести вытяжку и на каком расстоянии от плиты ее вешать, они утверждают, что оптимальная и универсальная высота – 70 сантиметров. Но прислушиваясь к экспертному мнению, все-таки стоит помнить, что газовое оборудование способствует большему нагреванию воздуха и низкое расположение воздухозаборного устройства может его повредить. Неоправданно большое расстояние способствует потере мощности.

Схема монтажа вытяжки над плитой - высота в см.

Электромонтаж вытяжки

Чтобы процесс монтажа оборудования прошел быстро, и результат радовал красивым внешним видом и исправной работой, нужно заранее задаться вопросом о том, как подключить вытяжку на кухне к электричеству. Проводка прокладывается в первую очередь, и этот процесс зависит в том числе от дизайна кухни.

Подключается электрическая вытяжка на кухню двумя способами:

  1. С помощью обыкновенной розетки. В этом случае проводка просто прячется за мебелью.
  2. С помощью автомата. При таком постоянном подключении проводку необходимо скрыть в ПВХ короб, за обшивкой стены или под плинтусом. Автомат в обязательном порядке должен быть включен в разрыв фазы. В процессе монтажа его выключают и концы питающих проводов обматывают изолентой (даже если они не оголенные).

Также большое внимание следует уделить заземлению. Качественная вентиляция без электричества на кухне пока что мало доступна, поэтому вопрос электробезопасности стоит остро. При небольшом опыте работы с сетью нужно в обязательном порядке обратиться к профессионалам, не пытайтесь разобраться в столь опасном вопросе самостоятельно.

Задаваясь вопросом о том, как подключить кухонную вытяжку, стоит учитывать, что розетки запрещено монтировать недалеко от плиты или мойки по соображениям безопасности. Наиболее приемлемый вариант установки – это область над навесными шкафами или на достаточной высоте (примерно 2 метра).

Чтобы подключение вытяжки к электросети не нарушало дизайн кухни, можно рассмотреть декорирование розетки коробом из ПВХ. Не стоит прятать ее за шкафами или громоздкими статичными предметами. В случае перепадов напряжения или других проблем нужно иметь доступ ко всем частям установленного оборудования.

Схема электромонтажа вытяжки

Подключение вытяжки в вентилиционный канал

При установке оборудования важно знать, как подсоединить вытяжку к вентиляции. Установка дополнительных устройств повлияет на штатную кухонную вентиляцию. Даже увеличение отверстия, куда уходит воздух, не поможет, поскольку сечение воздуховодной шахты внутри останется неизменным.

Установка вытяжки в короб

Мастерами было изобретено довольно простое и изящное решение этой проблемы: подключение кухонной вытяжки производится с помощью дополнительного короба с клапаном-хлопушкой. Над воздухоочистительным оборудованием устанавливается ящик с регулируемой заслонкой. Схема вытяжки для кухни спроектирована следующим образом:

  • когда вентиляторы в ней не работают, то клапан открыт и помещение вентилируется за счет стандартного воздуховода;
  • когда вытяжка включена и работает, клапан закрывается и вентиляция происходит через специально установленное вытяжное оборудование.

Перед тем как подсоединить вытяжку, выбирают тип воздуховода (пластиковый короб или металлическая гофрированная труба). Установка гофры производится с помощью следующих процедур:

  1. Гофру необходимо направить в заранее подготовленные отверстия на коробе и в вентиляции на стене. В верхней стенке шкафа для удобства установки ей придается форма квадрата.
  2. Шкаф с установленной трубой вешается на стену. Установка гофры на вытяжку сопровождается обязательной обработкой стыков силиконовым герметиком для удержания мощности и воздушного потока.
  3. Самостоятельно сделанный короб с клапаном нужно зафиксировать на шкафу, чтобы соединить гофру с шахтой вентиляции. Установка вытяжной трубы производится с использованием дополнительных материалов, в числе которых пена для заделки больших щелей.
  4. Далее система крепится в шкаф. Подключить вытяжку к вентиляции без шкафа можно с помощью саморезов или дюбелей (на случай, если крепление оборудования предусмотрено для стены).
  5. Гофра фиксируется с помощью заранее приобретенного хомута и герметика при необходимости.
  6. Подключение встроенной вытяжки напрямую без короба делается с помощью решетки с круглым отверстием.

Схема работы вентиляционного канала вытяжки

Процесс установки воздухоочистителя доступен любому взрослому человеку с минимальными навыками ручного труда. Вытяжка без подключения к вентиляции монтируется еще проще и не требует специальных пояснений.

О том, как выбрать подходящее оборудование для очистки воздуха, можно прочитать на нашем сайте. Благодаря вышеприведенной информации, вы теперь знаете, о том, как подготовить материалы и инструменты, как подключить вытяжку на кухне.